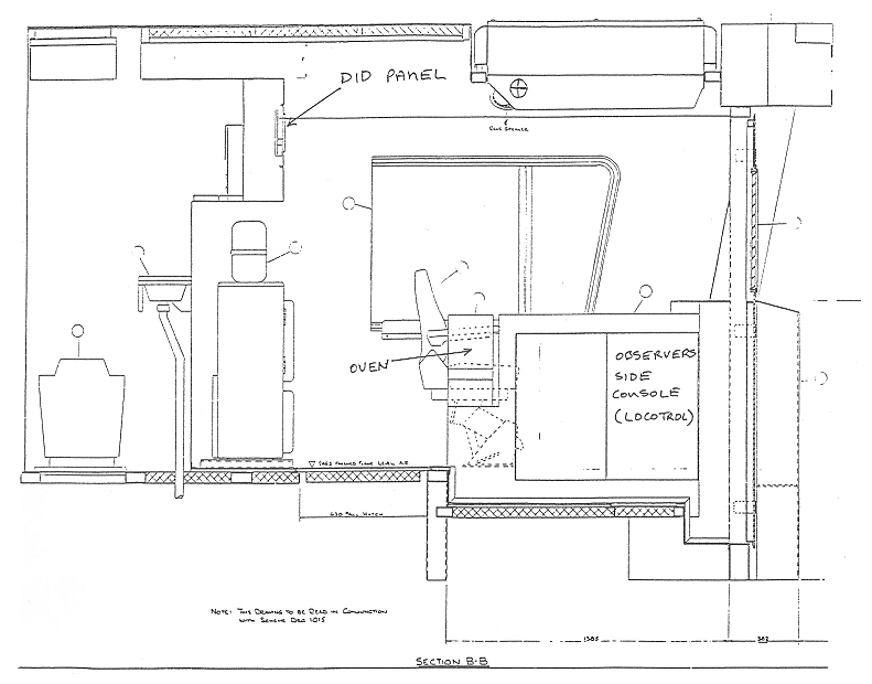
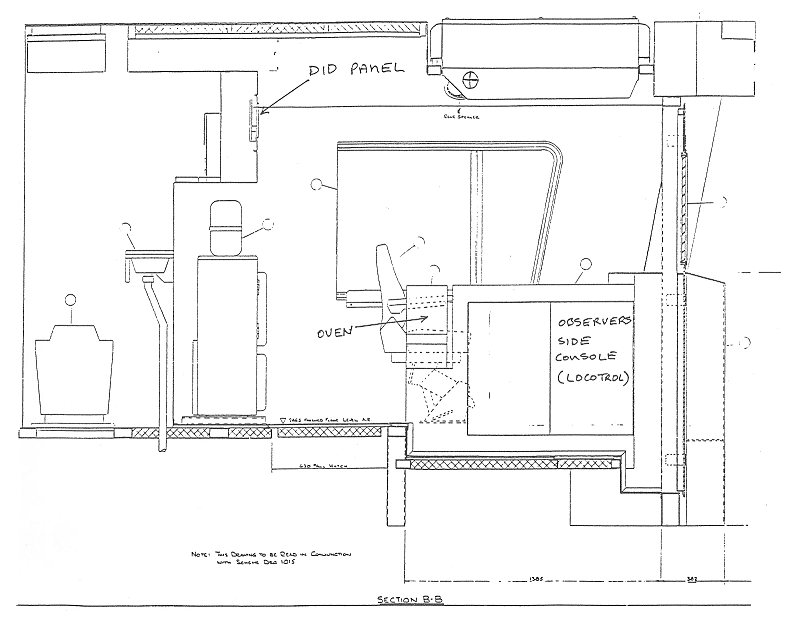
Alco-GE7 conversion4 Published May 2, 2017 at 791 × 620 in Alco-GE7 conversion4 Dash 8 rebuild. Builder’s drawing – 3. Note, cab air conditioner shown in place.