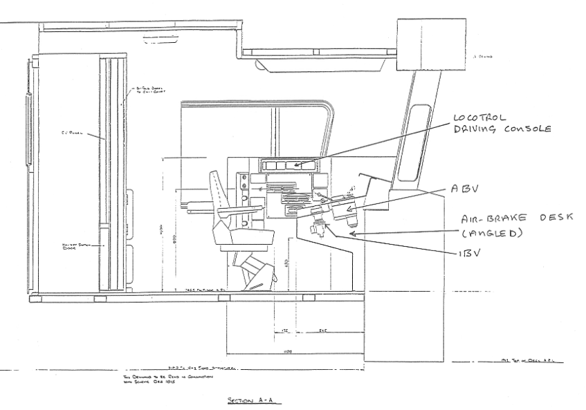
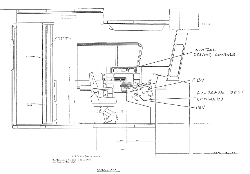
Alco-GE7 conversion2 Published May 2, 2017 at 862 × 603 in Alco-GE7 conversion2 Dash 8 rebuild. Builder’s drawing – 1. The air conditioner sits in the roof space shown.